EN IT

La scuola e il CINEAC di Jan Duiker

Le opere di J. Duiker (1890-1935), tra il 1924 e il 1935, s'inseriscono in modo autonomo nel panorama architettonico olandese di allora. Se da un lato egli critica esplicitamente una visione tradizionale della città in cui predominano ancora i concetti di estetica come furono avanzati da Camillo Sitte, non è nemmeno lineare il rapporto di J. Duiker con il gruppo "de 8" (gli otto) fondato da alcuni giovani architetti di Amsterdam nel 1927 e che rappresenterà insieme al gruppo "Opbouw" di Rotterdam fondato nel 1921, il movimento del "Nieuwe Bouwen", del "Nuovo Costruire", in Olanda.
Entrambe le associazioni sono coinvolte nelle vicende del CIAM, i cui congressi non mancheranno di esercitare sulle loro dottrine teoriche un'influenza decisiva.
Al secondo congresso tenutosi a Francoforte nel 1929 intorno al tema "Die Wohnung fiir das Existensminimum" partecipano: Van Loghem, Van der Vlugt, Van Eesteren, Merkelbach, Duiker, Rietveld e Van Ravesteyn.
Nel 1928 J. Duiker e W. G. Wiebinga si associano agli "8" e un anno dopo si unisce a loro C. Van Eesteren.
I fondatori del gruppo avevano pubblicato un manifesto in cui veniva espressa, in tono aggressivo,una presa di posizione che essenzialmente rifiutava l'estetica come punto di partenza per l'architettura. Ma più che questo manifesto saranno le opere concrete di J. Duiker e di Van der Viugt, realizzate a partire dal '26, ad indicare la direzione per la formalizzazione della nuova cultura.
A Rotterdam è in fase di realizzazione la fabbrica Van Nelle (1926-1930) di Brinkman e Van der Vlugt mentre Duiker sta realizzando il complesso di cura per tubercolosi "De Zonnestraal" (1926-1928). Duiker e Van der Vlugt determinano nella seconda metà degli anni '20 l'immagine del "Nuovo Costruire" e la loro architettura ne evidenzia il tratto più caratteristico: il riferimento continuo ad una nuova cultura basata sulla tecnologia. 
Non c'è più bisogno dell'ornamento che d'altronde era già stato escluso fin dalla pubblicazione di "Ornament und Verbrechen" di Adolf Loos. In questo periodo del primo dopoguerra, che è caratterizzato innanzitutto dalla volontà collettiva di migliorare le condizioni di vita, l'architettura deve esprimere rigore, trasparenza e libertà.
Il sanatorio di Duiker incorpora ed esprime questi ideali perfettamente.
L'uso dello scheletro in cemento armato come struttura portante, delle pareti di tamponamento, delle grandi superfici in vetro montate in serramenti di ferro, ed infine l'uso esclusivo del colore bianco diventeranno gli elementi costanti di questa architettura. Anche gli elementi tecnici sono messi in mostra e l'insieme assume in questo progetto l'aspetto di una nave che galleggia nel verde.
I problemi del "de 8" nascono intorno alla questione della casa.
Anche se il passaggio dall'edificazione perimetrale a quella aperta è un risultato di grande importanza, Duiker non sarà pronto ad accettare i
compromessi che invece permetteranno ad altri membri del gruppo di realizzare alcuni grossi complessi residenziali. Duiker propone edifici di 12 piani, gli altri continuano ad adattarsi ad una edificazione a stecca. Dopo aver cercato invano di introdurre ad Amsterdam (all'Aia sta realizzando gli appartamenti "Nirwana") lo sviluppo in altezza degli edifici, egli si concentrerà su altri tipi di progetti per esprimere i suoi ideali.
Durante la fase di progettazione del complesso di cura "Zonnestraal", ("Raggio di Sole"), Duiker elabora il suo concetto di "economia spirituale". 
Egli osserva le leggi della natura e le compara con i macchinari industriali — il fenomeno più importante del suo tempo — e la architettura. Spiegando il suo concetto Duiker parla di economia, di geometria e di funzionalità mentre si orienta verso le scienze naturali; per lui l'architettura e la natura formano un tutt'uno. La sua riflessione può essere vista come la ricerca di una teoria della progettazione. Secondo Duiker l'obiettivo dell'architettura può essere visto nell'organizzazione ottimale dello spazio, costruita nel modo "più economico". Ma questo uso economico dei materiali che egli sostiene non è nel senso di un "il più veloce possibile e costi più bassi possibile", bensì nel senso di una legge “cosmica” dell'economia. Con questo egli intende mostrare che i fenomeni naturali si manifestano nei modi più semplici. Se l'umanità viene strutturata secondo questa legge cosmica sarà possibile parlare di spiritualizzazione, di cultura. Nella visione di Duiker c'è una forte relazione tra annullamento della materia e cultura. Per l'architettura questo implica un uso economico dei materiali e costruzioni più leggere possibili. Questa impostazione risponde, a sua volta, al bisogno di luce, aria e sole, sia nelle abitazioni che nei luoghi di lavoro. Lo sport, il
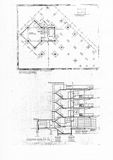
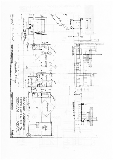
gioco e la cultura fisica hanno assunto per la popolazione una importanza di primo piano, e l'architettura rispecchia tale condizione culturale. Un altro concetto avanzato da Duiker è quello del "monismo geometrico". Nel progetto per il complesso "Zonnestraal" egli introduce delle figure geometriche nella composizione della pianta. Assi di simmetria sembrano essere i principi ordinatori di questa composizione, in cui la forma geometrica di base dà luogo quasi sempre ad una composizione che risulta in una pianta centrale. La pianta centrale diventa ,a partire dal 1926, un elemento importante nel lavoro di Duiker e la simmetria radiale compare in molti suoi progetti. Ma questo "pensiero centrale" è direttamente legato alle esigenze formulate nel programma del progetto, per cui la sua traduzione nel progetto cambia di volta in volta. Esempi come "la scuola all'aria aperta" di Amsterdam, dimostrano che la simmetria non viene sempre portata avanti, e che la priorità della funzionalità risulta talvolta in una composizione asimmetrica.

Nel caso della "openluchtschool" (la scuola all'aria aperta), Duiker cerca mediante la lottizzazione, l'uso dei materiali e la costruzione, di trarre il massimo profitto dal sole. Paradossalmente egli si vede costretto ad inserire la sua scuola entro un isolato chiuso, ma riesce a risolvere questo problema costruendo un corpo basso lungo il lato sud del lotto in cui viene collocata l'abitazione per il custode, una abitazione per il preside della scuola e un locale per le esercitazioni tecniche pratiche. La scuola stessa è posta diagonalmente entro lo spazio interno. Il lato nord del piano terra contiene i servizi e gli spazi per il personale che non necessitano di sole. Il piano terra accoglie poi l'atrio, un'aula e la palestra. Ai piani superiori la parte nord scompare per cui si crea una forma a "V", con la punta diretta verso sud e costituita da tre quadrati. Il quadrato a sud viene lasciato aperto per formare la grande piazza dove si può insegnare all'aperto. Ogni piano ha comunque due locali chiusi che sono soleggiati tutto il giorno. L'uso dello scheletro in cemento armate e delle grandi superfici in vetro montate in serramenti di ferro, accentua l'immagine di trasparenza e di igiene conforme al nuovo ideale pedagogico "mens sana in corpore sano". 

Un altrettanto armonioso rapporto tra forma e funzione, Duiker è riuscito a realizzarla nel progetto per il "Cineac" ad Amsterdam. In un lotto estremamente infelice nel centro di Amsterdam inserisce in modo spettacolare un edificio che deve rispondere a delle esigenze molto complesse. Il "Cineac", a differenza di molti teatri per il cinema, offre spettacoli e notizie di attualità in continuazione e la frequenza non è legata ad orari prestabiliti. E' questa particolare formula e il suo significato sociale che Duiker esprime nella composizione. La sala occupa praticamente tutto il lotto, e nei suoi scritti Duiker, a proposito di questo progetto, parla soprattutto delle tecniche molto avanzate da lui adoperate per raggiungere le notevoli qualità acustiche, visive e climatiche di questa sala.
Ma di interesse sono anche le soluzioni compositive che egli adotta per le facciate e per l'entrata. Al piano terra il perimetro dell'edificio viene in parte arretrato rispetto a quello del lotto e una colonna dello scheletro, in ferro questa volta, rimane sull'angolo per sorreggere il cubo sovrastante. In questo modo lo spazio della strada viene coinvolto in quello dell'entrata. Ma non soltanto Duiker evita così un atrio troppo piccolo per la sala, ma traduce anche in una forma la sua visione di questo tipo di film di attualità. L'atrio attraverso cui si accede normalmente ad una sala di un cinema . o di un teatro, serve da spazio di mediazione tra lo spazio della vita reale fuori - qui la strada - e lo spazio dell'illusione - la sala interna-. Il tipo di film proposto dal "Cineac", invece, deve far parte della vita reale in mezzo alla strada: qui si viene per essere informati. Questo aspetto viene espresso nell'organizzazione dei percorsi continui, a senso unico, con entrate e uscite separate e nella messa in mostra dei proiettori che sono visibili dietro la lunga vetrata curva del primo piano. La grande struttura metallica sul tetto, che sorregge la grande scritta "Cineac", riprende la curvatura presente nella composizione dei due primi piani e sottolinea lo sporgere del cubo sorretto dalla colonna proiettando l'insieme in mezzo agli avvenimenti di questa vivacissima strada.

Willem Brouwer - La scuola e il cineac di Jan Duiker Willem Brouwer - La scuola e il cineac di Jan Duiker Willem Brouwer - La scuola e il cineac di Jan Duiker Willem Brouwer - La scuola e il cineac di Jan Duiker Willem Brouwer - La scuola e il cineac di Jan Duiker Willem Brouwer - La scuola e il cineac di Jan Duiker Willem Brouwer - La scuola e il cineac di Jan Duiker Willem Brouwer - La scuola e il cineac di Jan Duiker Willem Brouwer - La scuola e il cineac di Jan Duiker Willem Brouwer - La scuola e il cineac di Jan Duiker Willem Brouwer - La scuola e il cineac di Jan Duiker Willem Brouwer - La scuola e il cineac di Jan Duiker Willem Brouwer - La scuola e il cineac di Jan Duiker Willem Brouwer - La scuola e il cineac di Jan Duiker Willem Brouwer - La scuola e il cineac di Jan Duiker Willem Brouwer - La scuola e il cineac di Jan Duiker

Willem Brouwer

Foto di Willem Brouwer Architetto willembrouwer2015@gmail.com Willem Brouwer Home Page: