EN IT

Meridiana Airline Corporate Image, Special Design

A new image for Meridiana

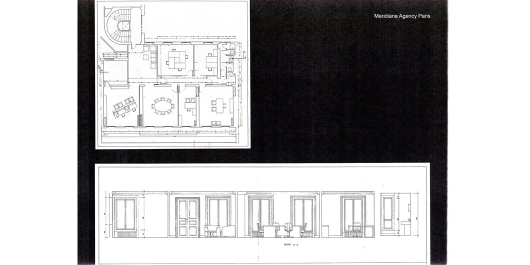
Since the 1st September 1991, Meridiana has acquired a new look to match its new name. The renewal of the company's visual image on its aircraft — the lowering of company colours to below the window-line and the redecoration of cabin interiors — will take place gradually, taking advantage of each aircraft's annual grounding for overhaul. Interiors will feature dark blue or light blue upholstery, depending on the passenger sector, and grey carpeting. Both ground and flight staff will have new uniforms in sugar-paper blue with midnight blue accessories, and architect Willem Brouwer has also designed a standard new look for all Meridiana agencies and airport offices in Italy and abroad.

(COSTA SMERALDA NEWS, 1991)

Meridiana Airline Corporate Image, Special Design - Willem Brouwer Meridiana Airline Corporate Image, Special Design - Willem Brouwer Meridiana Airline Corporate Image, Special Design - Willem Brouwer Meridiana Airline Corporate Image, Special Design - Willem Brouwer Meridiana Airline Corporate Image, Special Design - Willem Brouwer Meridiana Airline Corporate Image, Special Design - Willem Brouwer Meridiana Airline Corporate Image, Special Design - Willem Brouwer Meridiana Airline Corporate Image, Special Design - Willem Brouwer Meridiana Airline Corporate Image, Special Design - Willem Brouwer Meridiana Airline Corporate Image, Special Design - Willem Brouwer Meridiana Airline Corporate Image, Special Design - Willem Brouwer Meridiana Airline Corporate Image, Special Design - Willem Brouwer Meridiana Airline Corporate Image, Special Design - Willem Brouwer Meridiana Airline Corporate Image, Special Design - Willem Brouwer Meridiana Airline Corporate Image, Special Design - Willem Brouwer Meridiana Airline Corporate Image, Special Design - Willem Brouwer Meridiana Airline Corporate Image, Special Design - Willem Brouwer Meridiana Airline Corporate Image, Special Design - Willem Brouwer

Willem Brouwer

Foto di Willem Brouwer Architetto willembrouwer2015@gmail.com Willem Brouwer Home Page: